Fortsæt til indhold
LangelandshusetLangelandshuset
Copyright 2026 © www.langelandshuset.dk
  • Feriehuset
  • Huset
  • Priser
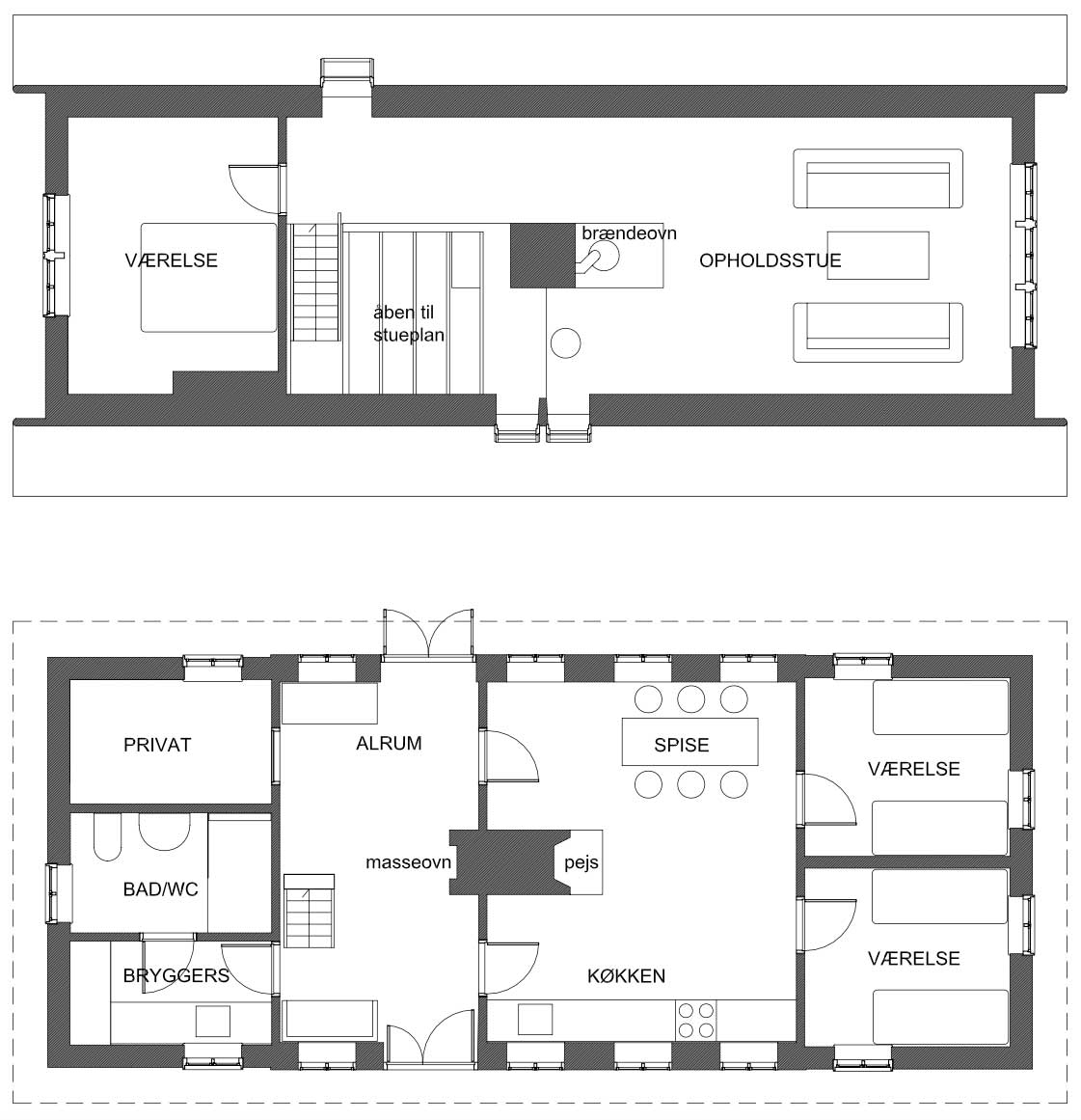
  • Indretning
  • Kort
  • Galleri
  • Langeland
  • Kontakt
Translate »